new listing
House For Sale In Erindale, Saskatoon, Saskatchewan
$549,900 QuickQuoteTM:
QuickQuoteTM provides an estimated range of a property’s current market value and is based on local market insights and information available on the property. QuickQuoteTM is not an appraisal or a substitute for an in-person valuation done by an experienced professional. Learn more or connect with an expert
$496K - $665K
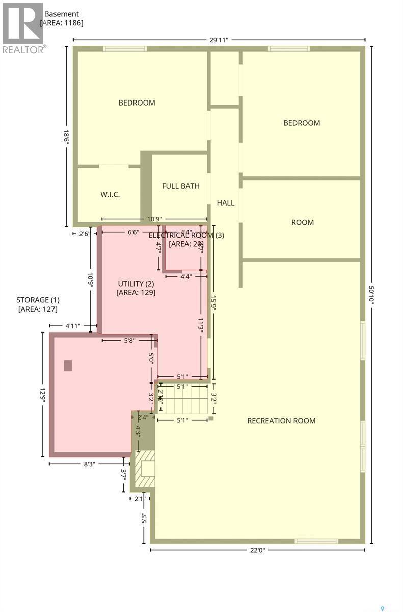
5 Beds
3 Baths
-
Details
-
Map
-
Demographics
-
Street View
-
Get Directions
-
Advertising
Rent Today. Own Tomorrow.
Explore our Rent-to-own Path to Homeownership™ designed to help you become a homeowner.














































