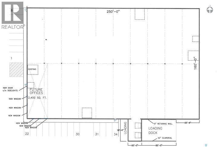
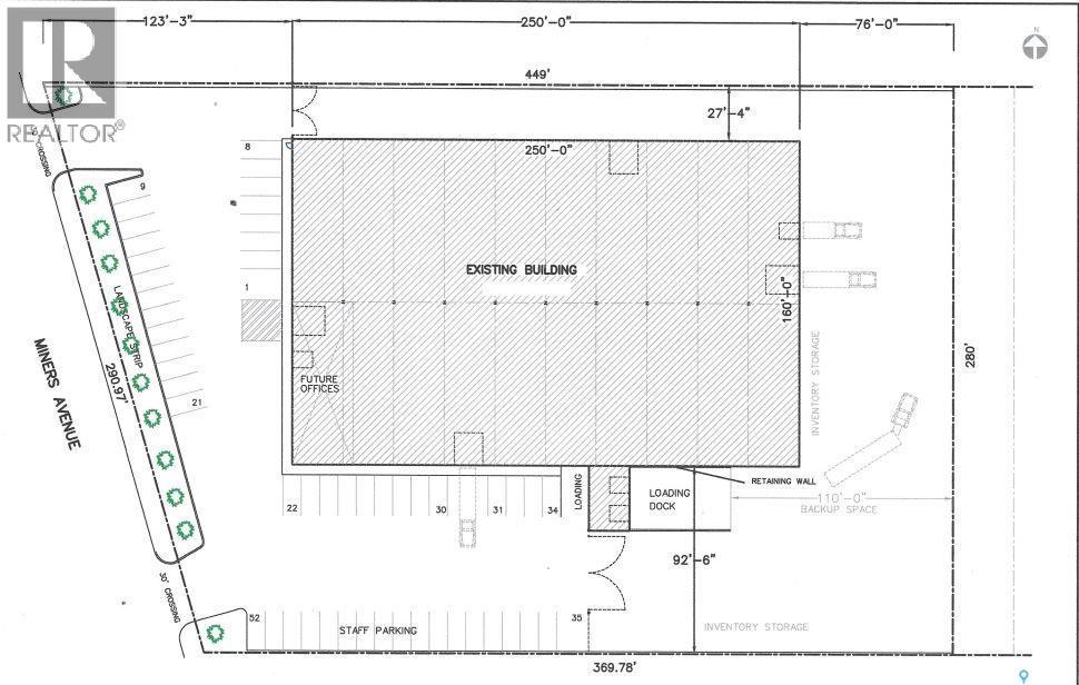
Commercial For Lease In Hudson Bay Industrial, Saskatoon, Saskatchewan
$13.00 /sq. ft.None Beds
-
Details
-
Map
-
Demographics
-
Street View
-
Get Directions
-
Advertising









