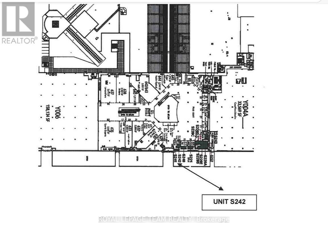
Commercial For Sale In Overbrook - McArthur, Ottawa, Ontario
$110,000None Beds
-
Details
-
Map
-
Demographics
-
Street View
-
Get Directions
-
Advertising
Sales/Price History
Log in or create an account to see sold and historical listings information

















