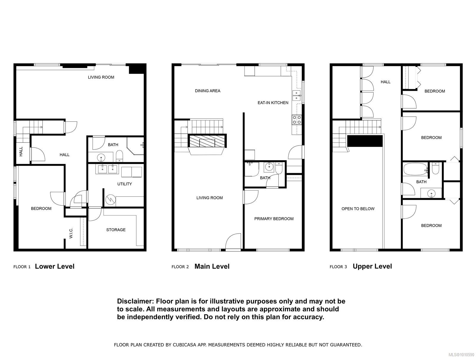
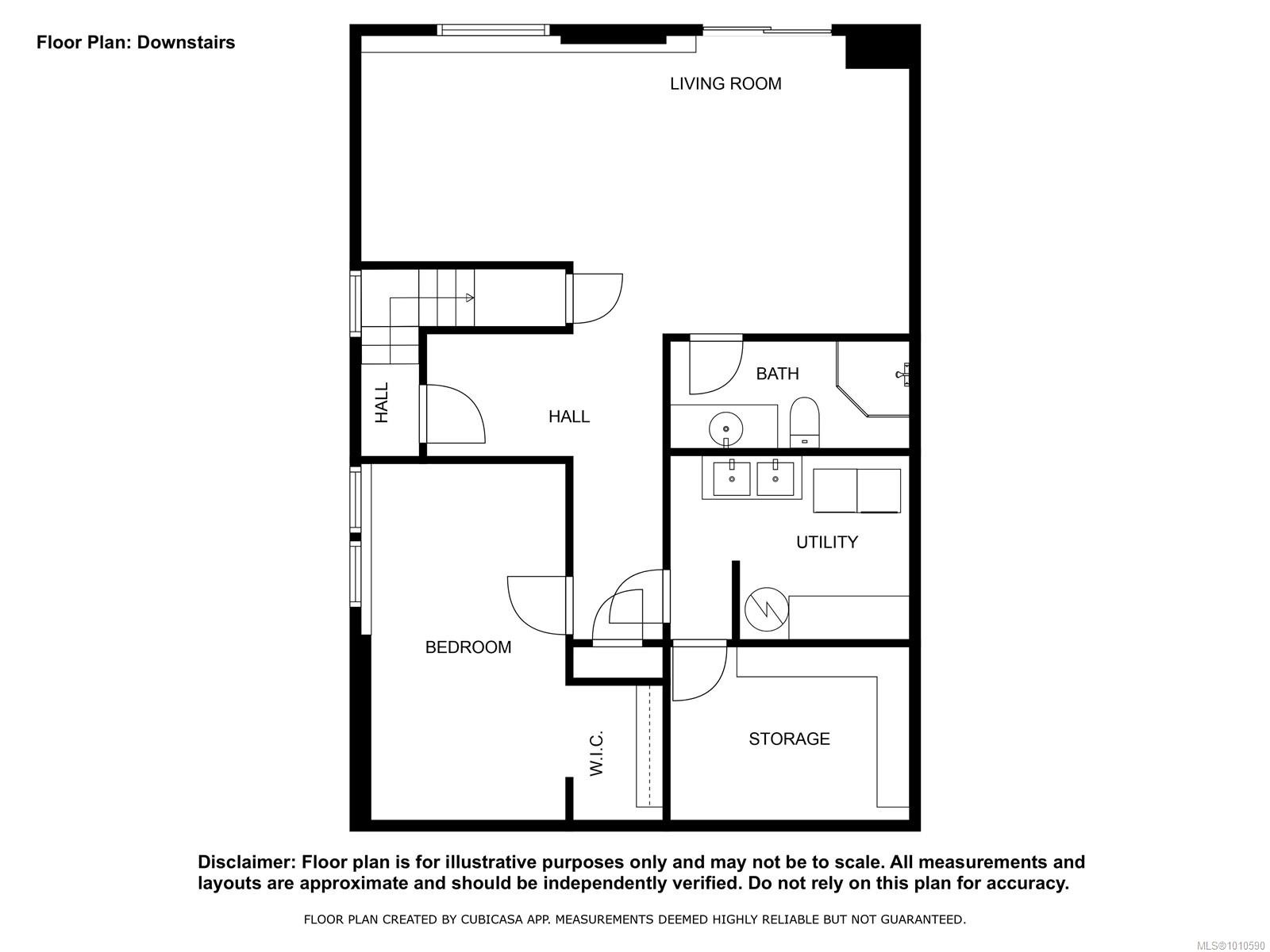
House For Sale In Port Hardy, British Columbia
$479,000 QuickQuoteTM: Not Available5 Beds
3 Baths
-
Details
-
Map
-
Demographics
-
Street View
-
Get Directions
-
Advertising











































