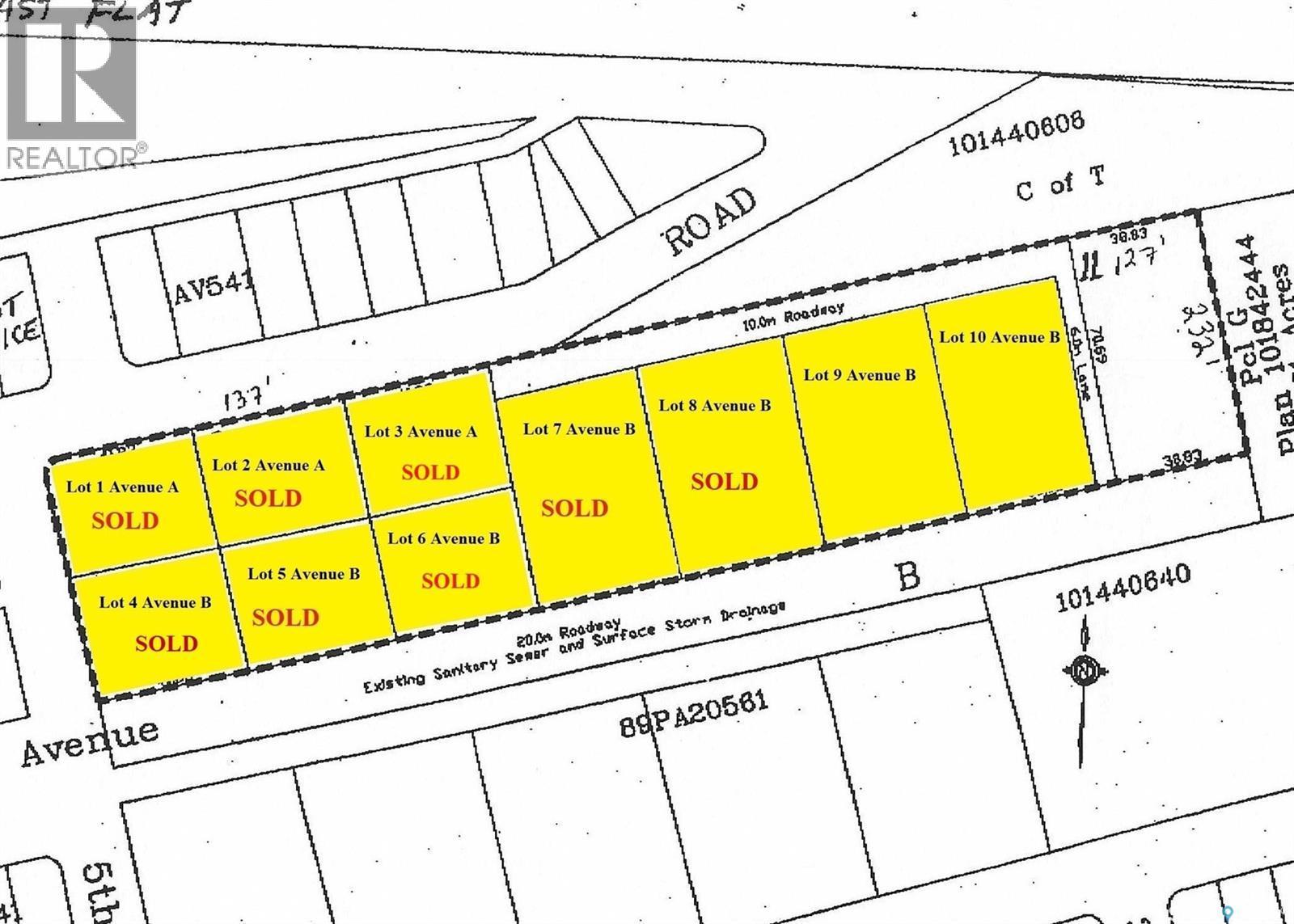
Vacant Land For Sale In Shellbrook Rm No. 493, Saskatchewan
$12,500None Beds
-
Details
-
Map
-
Demographics
-
Street View
-
Get Directions
-
Advertising


