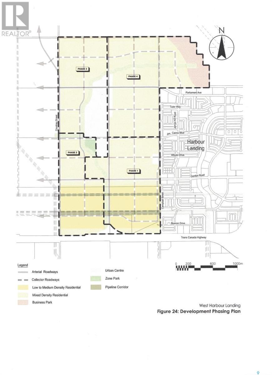
Vacant Land For Sale In Harbour Landing, Regina, Saskatchewan
$430,000None Beds
-
Details
-
Map
-
Demographics
-
Street View
-
Get Directions
-
Advertising









