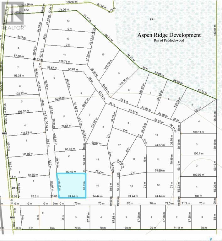
Vacant Land For Sale In Paddockwood Rm No. 520, Saskatchewan
$89,900None Beds
-
Details
-
Map
-
Demographics
-
Street View
-
Get Directions
-
Advertising







