Investment For Sale In Saint-Jérôme, Quebec
$1,089,900-
Details
-
Map
-
Demographics
-
Street View
-
Get Directions
-
Advertising
Remarks:
Quadruplex isolé situé à l'angle des rues Gauthier et De Martigny Ouest, dans un secteur recherché de Saint-Jérôme. L'immeuble comprend quatre logements résidentiels bien entretenus, dont un grand 7 ½ entièrement meublé au rez-de-chaussée, actuellement vacant, offrant un accès direct au sous-sol et la possibilité d'en compléter l'aménagement pour accroître la superficie habitable ou le rendement locatif. Deux 4 ½ lumineux occupés à l'étage et un 3 ½ semi-meublé au sous-sol complètent l'ensemble. Plusieurs rénovations ont été effectuées récemment. Emplacement central près du centre-ville, des commerces, du palais de justice et de l'autoroute.
Quadruplex isolé situé à l'angle des rues Gauthier et De Martigny Ouest, au coeur d'un secteur central de Saint-Jérôme.
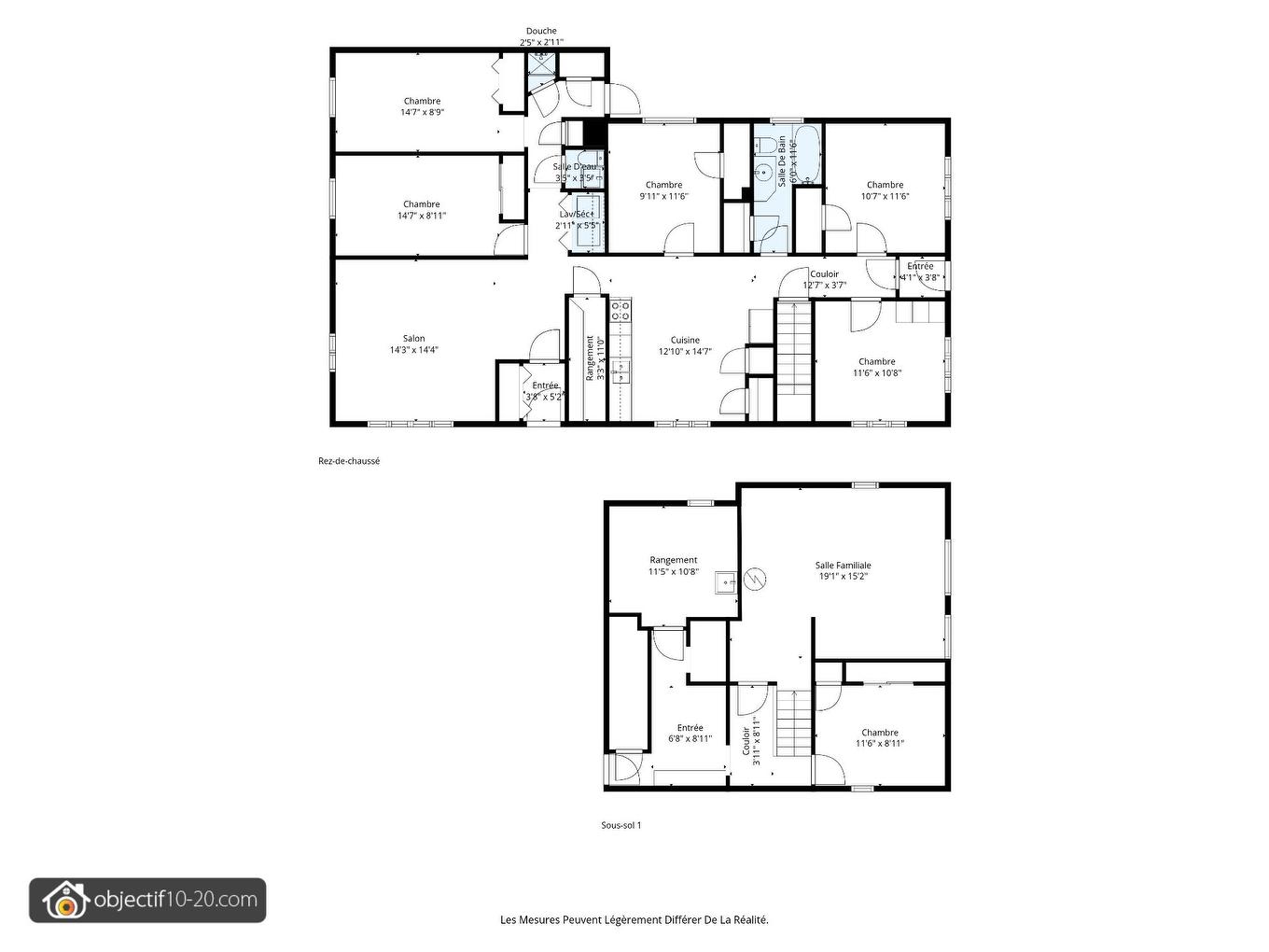
Immeuble résidentiel de quatre logements offrant à la fois un bon potentiel d'optimisation et ayant bénéficié de plusieurs rénovations récentes. La plus grandes unité est disponible pour un propriétaire occupant, aménagé sur deux étages (La moitié du sous-sol et l'entièreté du rez-de-chaussée).
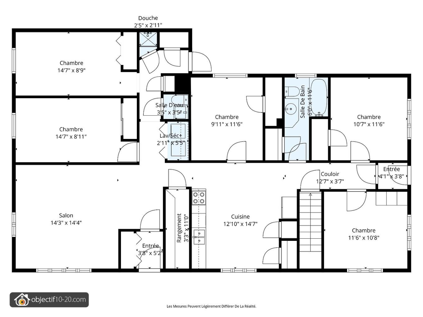
Composition des logements :
-- Rez-de-chaussée : logement de type 7 ½, actuellement vacant et entièrement meublé. Accès direct au sous-sol, offrant la possibilité d'aménager ou de compléter la finition de cet espace afin d'augmenter la superficie habitable ou le rendement locatif.
-- Deux logements de type 4 ½ à l'étage, occupés par des locataires stables.
-- Un logement de type 3 ½ au sous-sol, semi-meublé et fonctionnel.
Revenus bruts potentiels : 84 300 $
Caractéristiques générales :
-- Terrain de 5 000 pi² (coin de rue)
-- Bâtiment de 35 pi x 56 pi
-- Fondations en béton coulé
-- Toiture en bitume et gravier
-- Stationnements extérieurs pour les locataires
Inclusions :
-- 378 (4 ½) : laveuse, sécheuse, lave-vaisselle
-- 380 (3 ½) : réfrigérateur, cuisinière, laveuse, sécheuse, lave-vaisselle
-- 181 Martigny (7 ½) : tous les meubles et électroménagers
Exclusions : effets personnels des locataires.
Inclusions: Électroménagers inclus dans les logements, soit : Logement 378 Gauthier (4 ½ - 2 étage) : laveuse, sécheuse et lave-vaisselle (selon mention). Logement 380 Gauthier (3 ½ - sous-sol) : réfrigérateur, cuisinière, laveuse, sécheuse et lave-vaisselle. Logement 181 Martigny (7 ½ - rez-de-chaussée) : tous les meubles, électroménagers, le logement étant actuellement loué entièrement meublé.
Exclusions : Biens et effets personnels appartenant aux locataires.
Building Features:
- Style: Fourplex
- Driveway: Asphalt
- Foundation: Poured concrete
- Parking: Driveway
- Proximity: Highway, CEGEP, Daycare centre, Park, Bicycle path, Elementary school, High school, Cross-country skiing, Commuter train, Public transportation
- Roofing: Asphalt and gravel
- Size: 10.71 x 17.35 METRE
- Heating System: Electric baseboard units
- Heating Energy: Electricity
- Water Supply: Municipality
- Sewage System: Municipality
Potential Gross Revenue:
- Residential: $84,300
Taxes:
- Municipal Tax: $5,731
- School Tax: $455
- Annual Tax Amount: $6,186
Property Assessemnt:
- Lot Assessment: $177,400
- Building Assessment: $388,100
- Total Assessment: $565,500
Property Features:
- Bedrooms: 2
- Bathrooms: 1
- Built in: 1958
- Lot Depth: 30.48 Metre
- Lot Frontage: 15.24 Metre
- Lot Size: 464.50 Square Metres
- Zoning: RESI
- No. of Parking Spaces: 7
Revenue Units:
Unit 1
- Pieces 4
- Bedrooms 2
- Baths 1
Rooms:
- Living 2nd Level 3.35 m x 3.33 m 11.0 ft x 10.11 ft Flooring: Laminate floor
- Kitchen 2nd Level 3.96 m x 2.74 m 13.0 ft x 9.0 ft Flooring: Laminate floor
- Primary Bedroom 2nd Level 3.66 m x 2.74 m 12.0 ft x 9.0 ft Flooring: Laminate floor
- Bedroom - Irregular 2nd Level 3.35 m x 2.44 m 11.0 ft x 8.0 ft Flooring: Laminate floor
- Bathroom 2nd Level 2.13 m x 1.22 m 7.0 ft x 4.0 ft Flooring: Laminate floor
Unit 2
- Pieces 3
- Bedrooms 1
Rooms:
- Foyer Basement Level 3.66 m x 0.91 m 12.0 ft x 3.0 ft Flooring: Ceramic
- Living Basement Level 4.88 m x 3.96 m 16.0 ft x 13.0 ft Flooring: Laminate floor
- Dining Basement Level 2.44 m x 2.13 m 8.0 ft x 7.0 ft Flooring: Laminate floor
- Kitchen Basement Level 3.35 m x 2.44 m 11.0 ft x 8.0 ft Flooring: Laminate floor
- Primary Bedroom Basement Level 3.35 m x 3.02 m 11.0 ft x 9.11 ft Flooring: Laminate floor
- Powder room Basement Level 1.22 m x 0.91 m 4.0 ft x 3.0 ft Flooring: Laminate floor
- Other Basement Level 1.50 m x 1.17 m 4.11 ft x 3.10 ft Flooring: Ceramic
Unit 3
- Pieces 7
- Bedrooms 5
- Baths 1
Rooms:
- Foyer Ground Level 1.12 m x 1.57 m 3.8 ft x 5.2 ft
- Living Ground Level 4.34 m x 4.37 m 14.3 ft x 14.4 ft
- Kitchen Ground Level 3.91 m x 4.45 m 12.10 ft x 14.7 ft
- Primary Bedroom Ground Level 3.51 m x 3.25 m 11.6 ft x 10.8 ft
- Bedroom Ground Level 3.23 m x 3.51 m 10.7 ft x 11.6 ft
- Bedroom Ground Level 3.02 m x 3.51 m 9.11 ft x 11.6 ft
- Bedroom Ground Level 4.45 m x 2.67 m 14.7 ft x 8.9 ft
- Bedroom Ground Level 4.45 m x 2.72 m 14.7 ft x 8.11 ft
- Bathroom Ground Level 1.83 m x 3.51 m 6.0 ft x 11.6 ft
- Laundry Ground Level 0.89 m x 1.65 m 2.11 ft x 5.5 ft
- Powder room Ground Level 1.04 m x 1.04 m 3.5 ft x 3.5 ft
Unit 4
- Pieces 4
- Bedrooms 2
Rooms:
Convert Measurement to:
Data provided by: Centris - 600 Ch Du Golf, Ile -Des -Soeurs, Quebec H3E 1A8
All information displayed is believed to be accurate but is not guaranteed and should be independently verified. No warranties or representations are made of any kind. Copyright© 2021 All Rights Reserved.















































