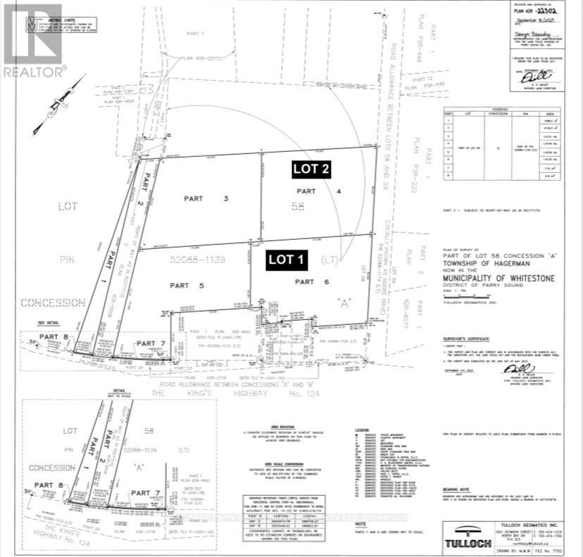
Vacant Land For Sale In Whitestone (Hagerman), Ontario
$129,000None Beds
-
Details
-
Map
-
Demographics
-
Street View
-
Get Directions
-
Advertising
