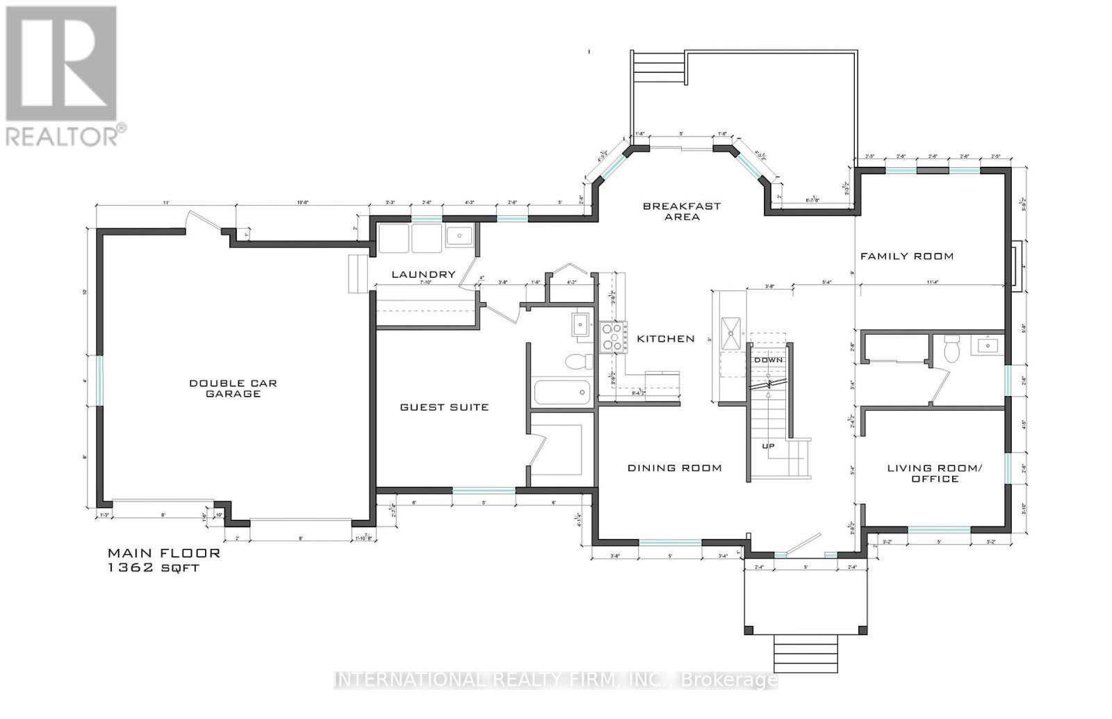
House For Lease In Trent Hills, Ontario
$2,500.00 /month4 Beds
4 Baths
-
Details
-
Map
-
Demographics
-
Street View
-
Get Directions
-
Advertising
Sales/Price History
Log in or create an account to see sold and historical listings information


















