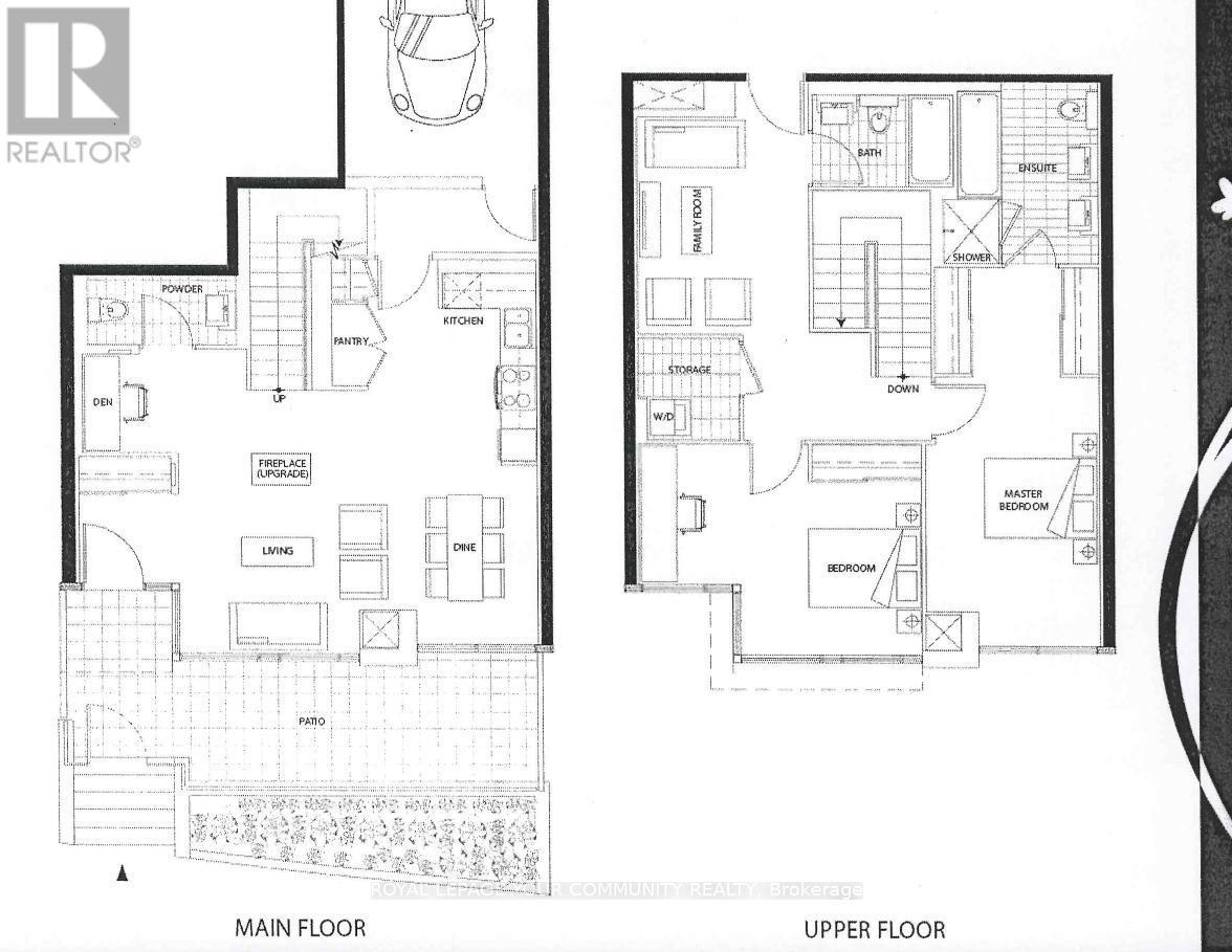
Townhouse For Sale In Cityplace, Toronto, Ontario
$1,299,000 QuickQuoteTM:2+1 Beds
3 Baths
-
Details
-
Map
-
Demographics
-
Street View
-
Get Directions
-
Advertising
MULTIMEDIA










