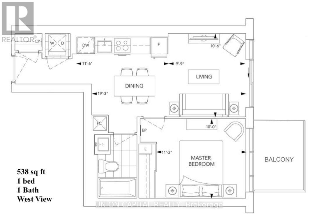
Lease In Wynford-Concorde, Toronto, Ontario
$2,400.00 /month1 Beds
1 Bath
-
Details
-
Map
-
Demographics
-
Street View
-
Get Directions
-
Advertising
MULTIMEDIA
Sales/Price History
Log in or create an account to see sold and historical listings information



















