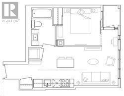
Lease In Yorkville, Toronto, Ontario
$2,500.00 /month1 Beds
1 Bath
-
Details
-
Map
-
Demographics
-
Street View
-
Get Directions
-
Advertising
















