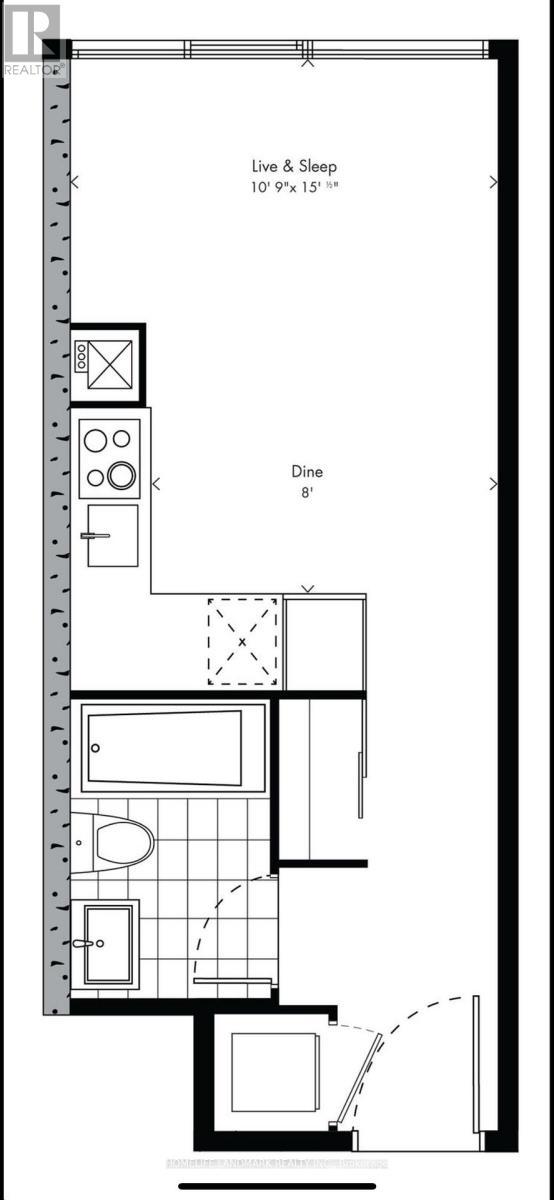
Lease In Grange Park, Toronto, Ontario
$1,950.00 /monthNone Beds
1 Bath
-
Details
-
Map
-
Demographics
-
Street View
-
Get Directions
-
Advertising







