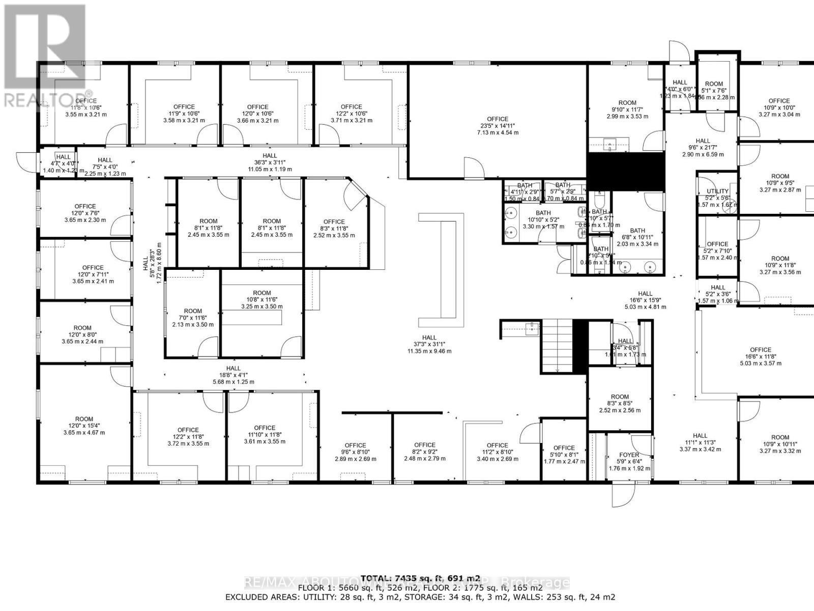
Commercial For Sale In Three Bridges, Port Colborne, Ontario
$1,490,000None Beds
3 Baths
-
Details
-
Map
-
Demographics
-
Street View
-
Get Directions
-
Advertising













