House For Lease In McLaughlin, Oshawa, Ontario
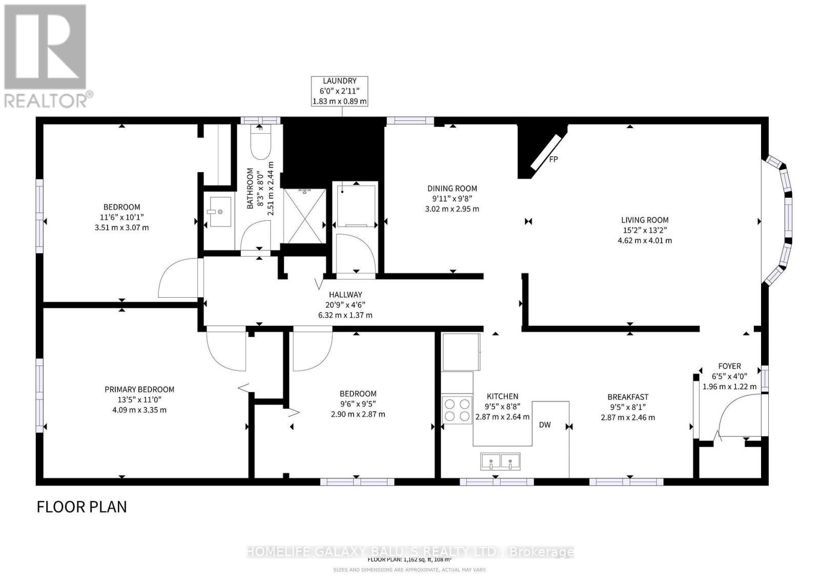
$2,500.00 /month3 Beds
1 Bath
-
Details
-
Map
-
Demographics
-
Street View
-
Get Directions
-
Advertising
MULTIMEDIA














































