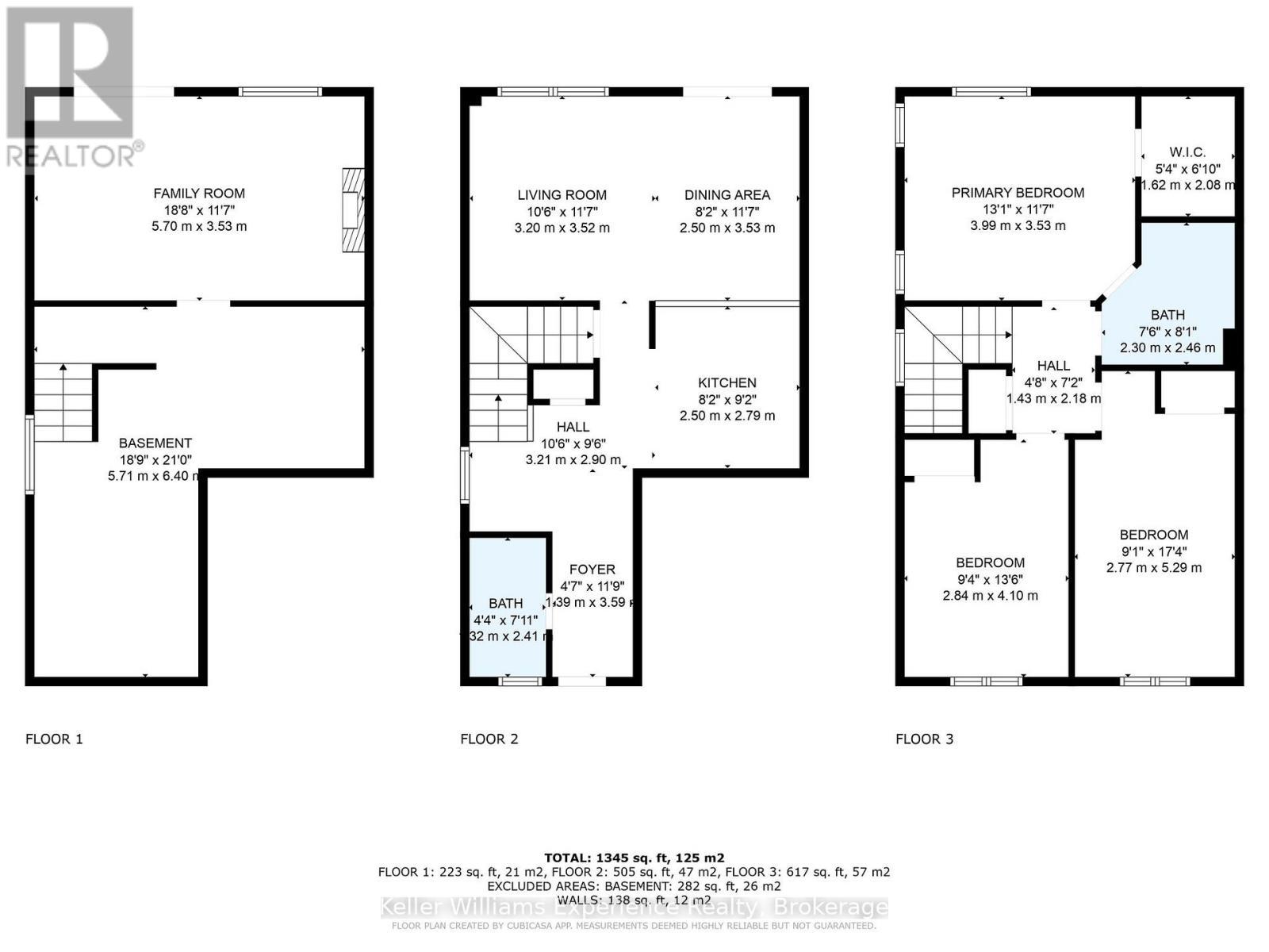
House For Sale In Midland, Ontario
$499,900 QuickQuoteTM:3 Beds
2 Baths
-
Details
-
Map
-
Demographics
-
Street View
-
Get Directions
-
Advertising
MULTIMEDIA
Sales/Price History
Log in or create an account to see sold and historical listings information



























