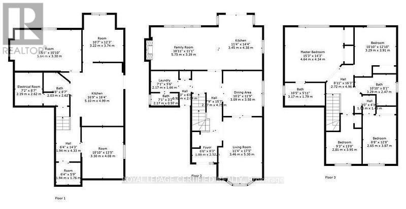
House For Lease In Albion, Hamilton, Ontario
$1,850.00 /month2 Beds
1 Bath
-
Details
-
Map
-
Demographics
-
Street View
-
Get Directions
-
Advertising










