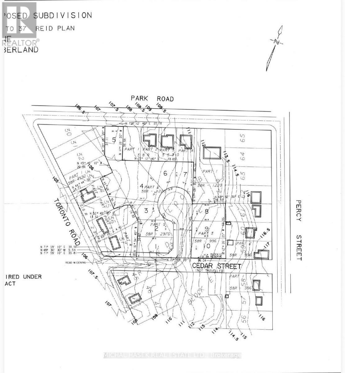
Vacant Land For Sale In Cramahe, Ontario
$1,500,000None Beds
-
Details
-
Map
-
Demographics
-
Street View
-
Get Directions
-
Advertising
