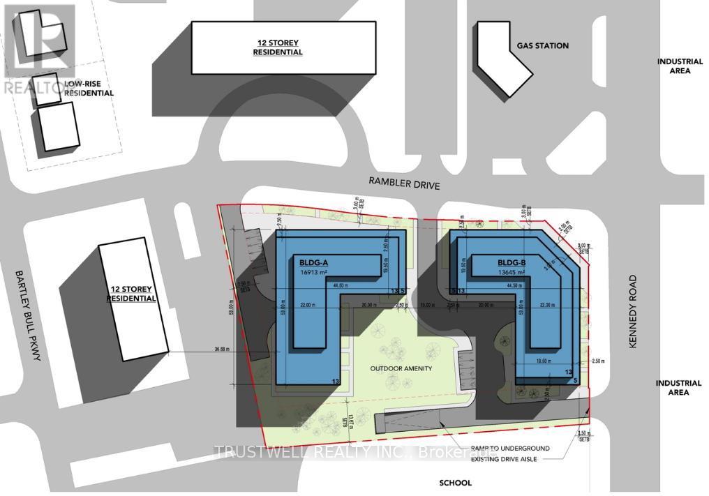
Commercial For Sale In Kennedy Road South, Brampton, Ontario
$16,888,888 QuickQuoteTM: Not AvailableNone Beds
-
Details
-
Map
-
Demographics
-
Street View
-
Get Directions
-
Advertising



