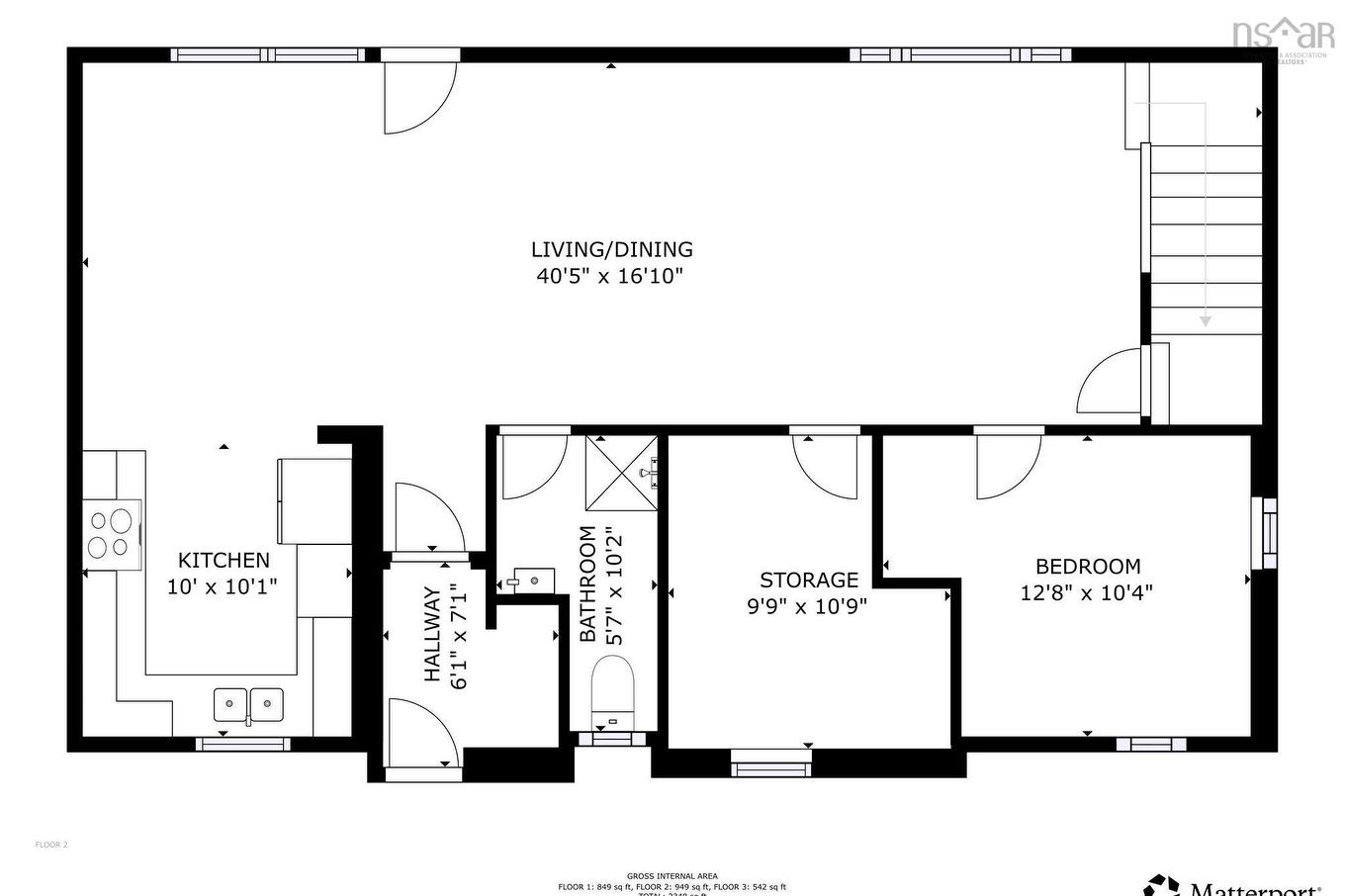
House For Sale In Bridgewater, Nova Scotia
$474,900 QuickQuoteTM:6 Beds
2 Baths
-
Details
-
Map
-
Demographics
-
Street View
-
Get Directions
-
Advertising














































