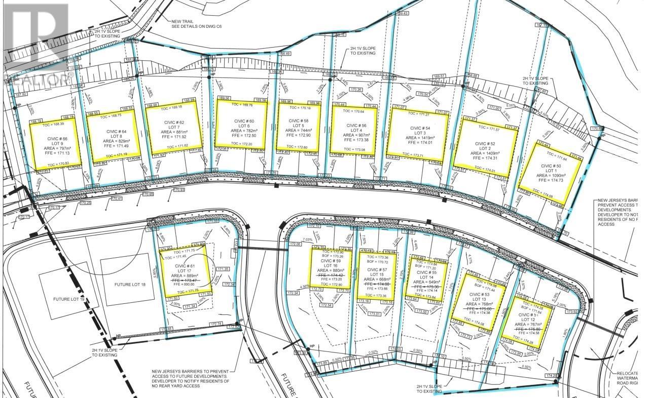
Vacant Land For Sale In Paradise, Newfoundland and Labrador
$250,000None Beds
-
Details
-
Map
-
Demographics
-
Street View
-
Get Directions
-
Advertising

