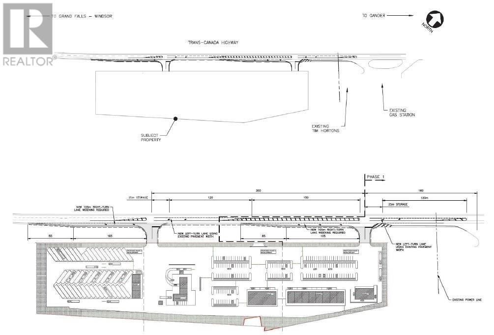
Vacant Land For Sale In Bishop's Falls, Newfoundland and Labrador
$49,900None Beds
-
Details
-
Map
-
Demographics
-
Street View
-
Get Directions
-
Advertising






