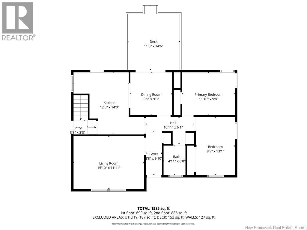
House For Sale In Dalhousie, New Brunswick
$194,000 QuickQuoteTM:2+1 Beds
2 Baths
-
Details
-
Map
-
Demographics
-
Street View
-
Get Directions
-
Advertising






























