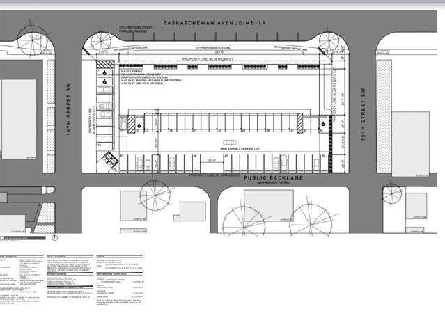
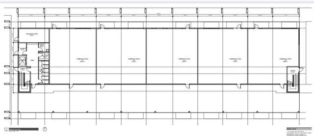
Commercial For Sale In Portage La Prairie, Manitoba
$1None Beds
-
Details
-
Map
-
Demographics
-
Street View
-
Get Directions
-
Advertising








