House For Sale In Salmon Arm, British Columbia
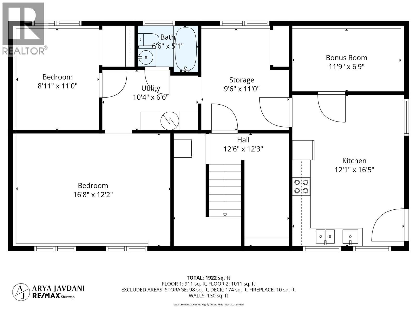
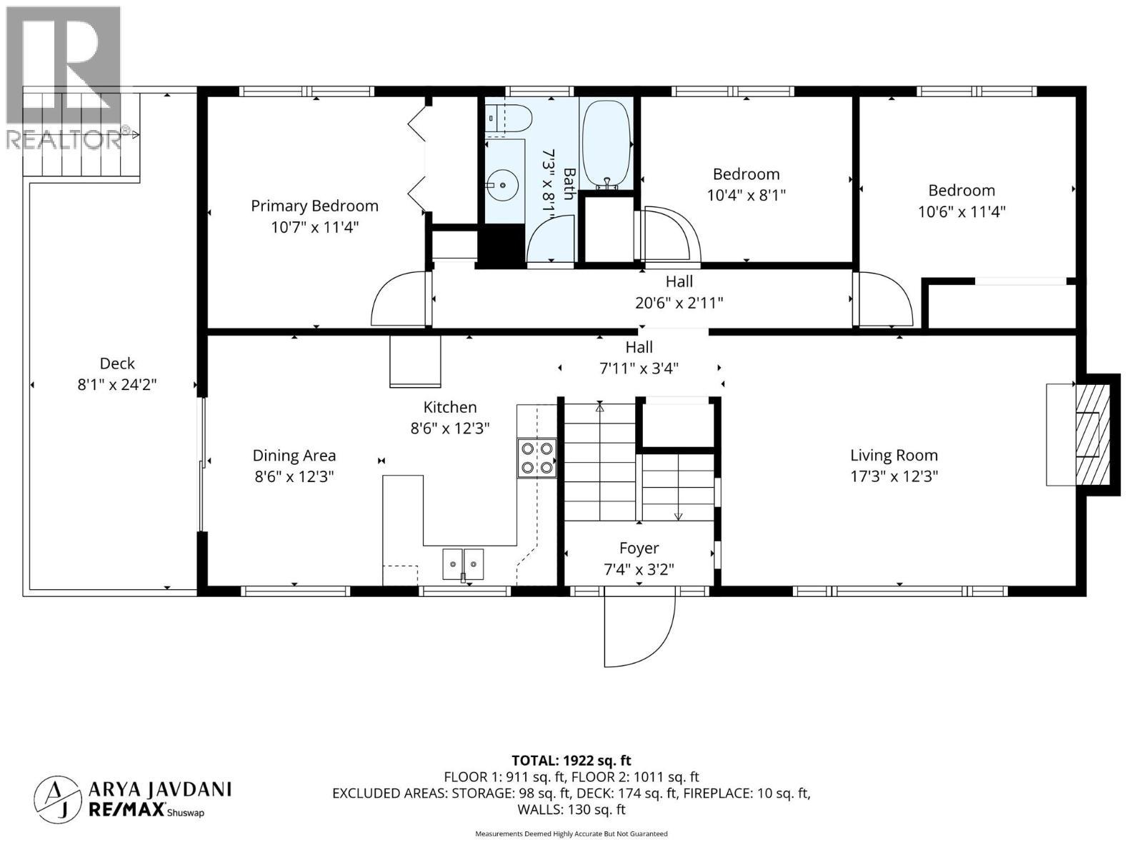
$679,900 QuickQuoteTM: Not Available5 Beds
2 Baths
-
Details
-
Map
-
Demographics
-
Street View
-
Get Directions
-
Advertising
MULTIMEDIA






















































