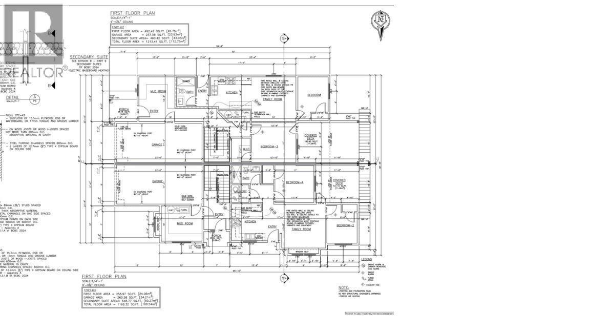
House For Sale In North Nechako, Prince George, British Columbia
$579,900 QuickQuoteTM: Not Available1 Beds
-
Details
-
Map
-
Demographics
-
Street View
-
Get Directions
-
Advertising
