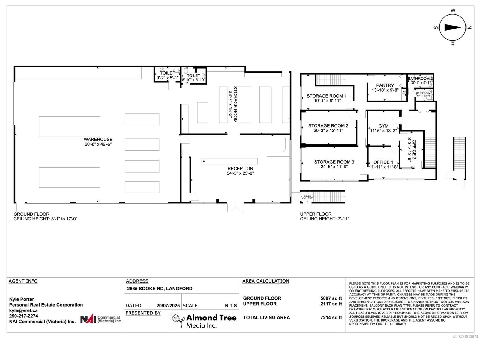
Commercial For Sale In Langford, British Columbia
$3,600,000None Beds
-
Details
-
Map
-
Demographics
-
Street View
-
Get Directions
-
Advertising










































