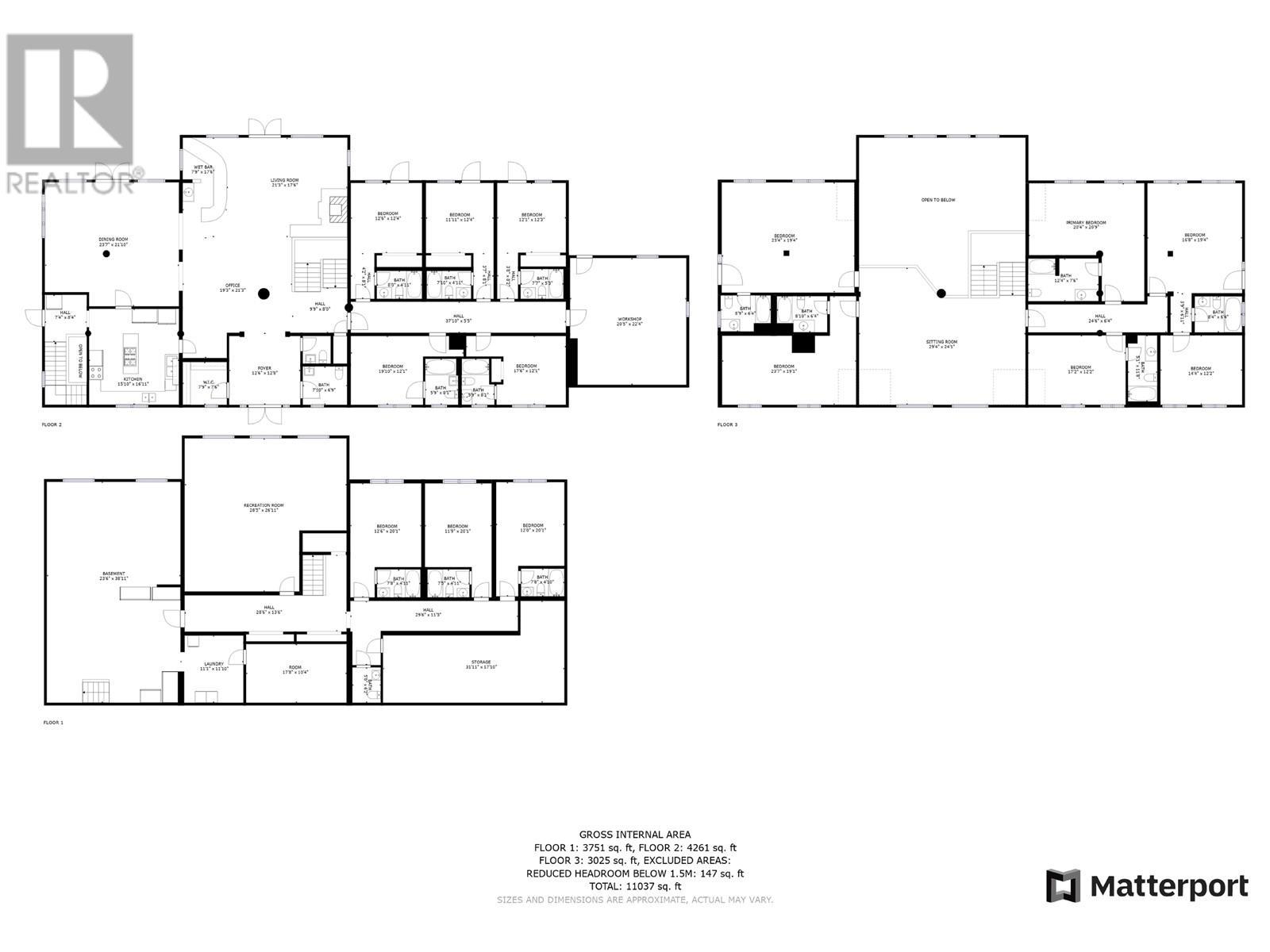
Commercial For Sale In Fort St. John, British Columbia
$1,850,000None Beds
-
Details
-
Map
-
Demographics
-
Street View
-
Get Directions
-
Advertising







































