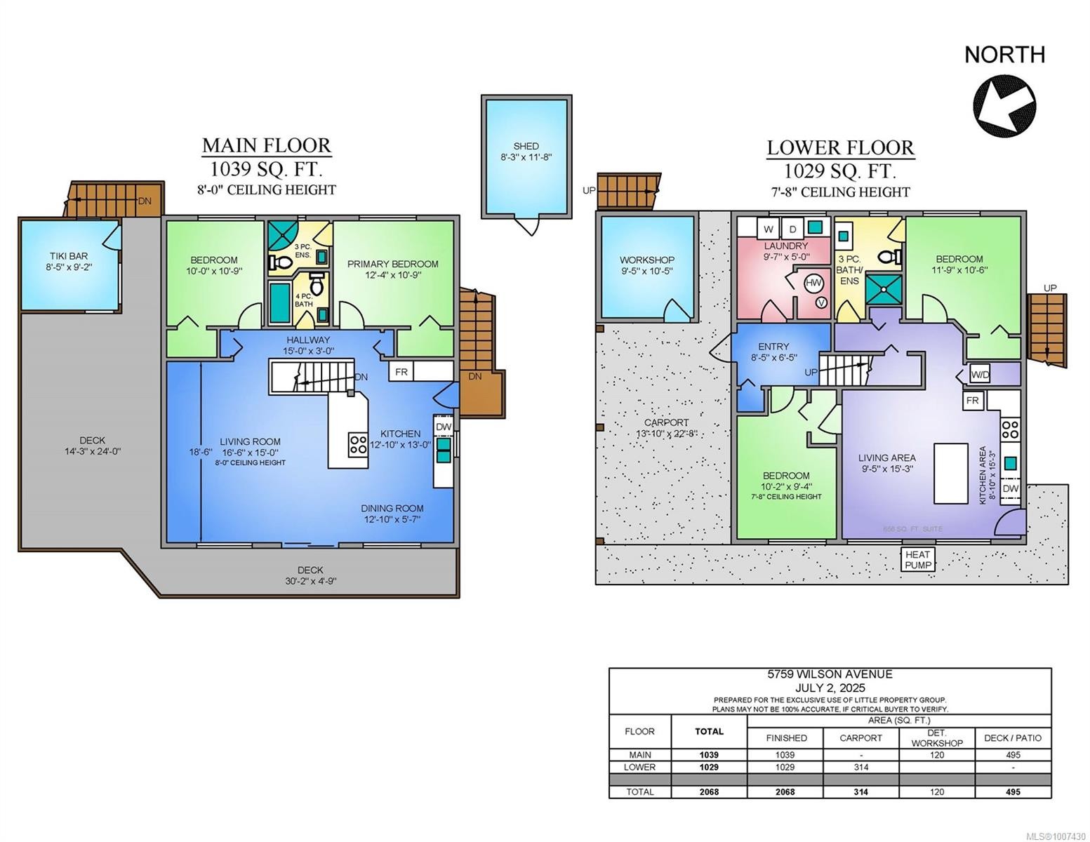
House For Sale In Duncan, British Columbia
$750,000 QuickQuoteTM:4 Beds
3 Baths
-
Details
-
Map
-
Demographics
-
Street View
-
Get Directions
-
Advertising






















































