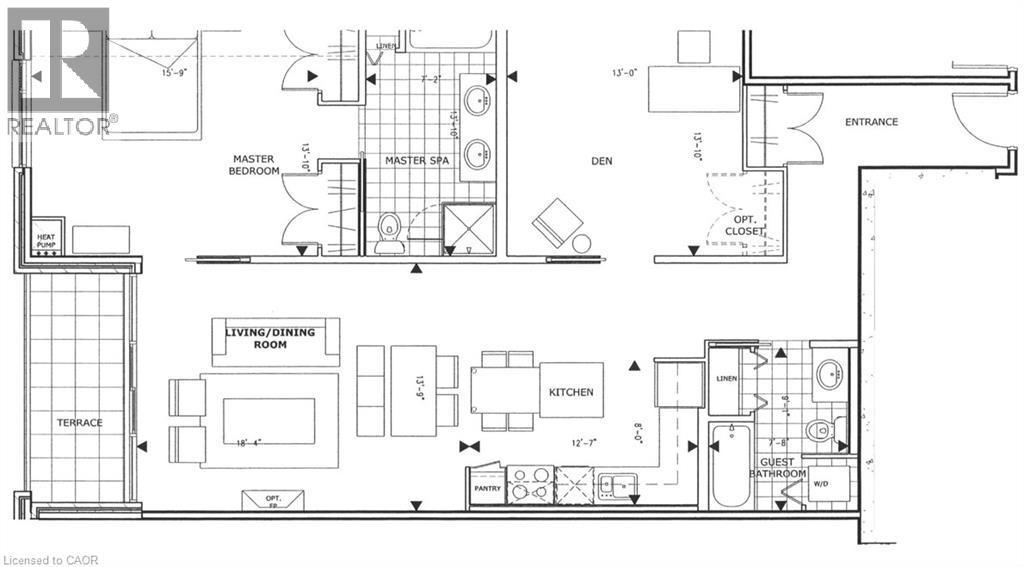
Condo For Sale In Central, Waterloo, Ontario
$624,900 QuickQuoteTM:2 Beds
2 Baths
-
Details
-
Map
-
Demographics
-
Street View
-
Get Directions
-
Advertising










































