new listing
Townhouse For Sale In Champlain Heights, Vancouver, British Columbia
$980,000 QuickQuoteTM:
QuickQuoteTM provides an estimated range of a property’s current market value and is based on local market insights and information available on the property. QuickQuoteTM is not an appraisal or a substitute for an in-person valuation done by an experienced professional. Learn more or connect with an expert
$822K - $1.1M
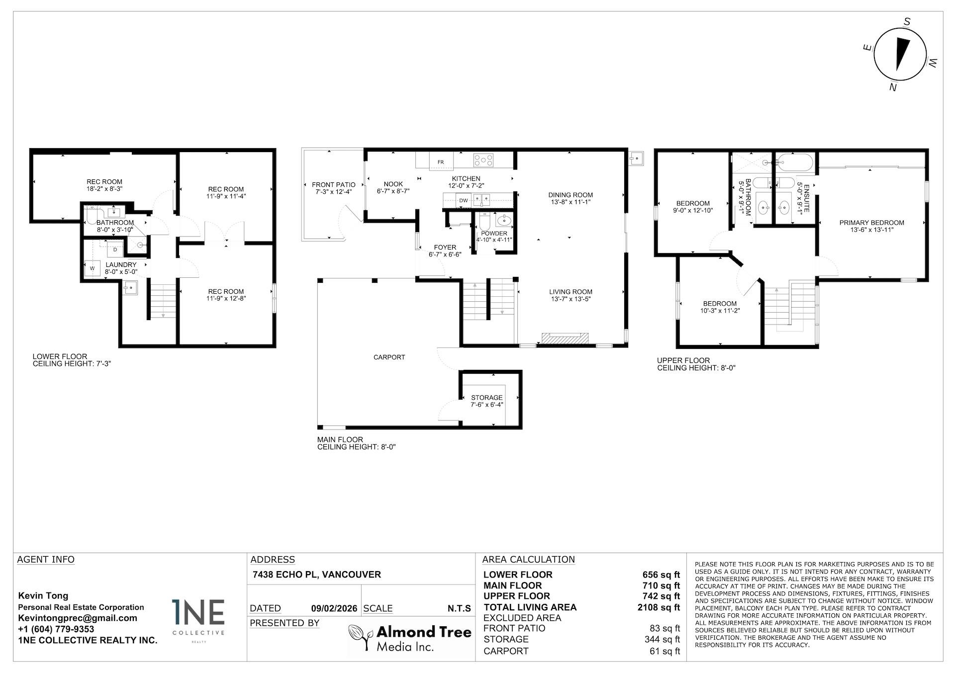
3 Beds
4 Baths
-
Details
-
Map
-
Demographics
-
Street View
-
Get Directions
-
Advertising
Are you a real estate investor?
Check out this listing on our new RLP InvestorsEdge™ website. You'll find in-depth investment financials, including ROI, cap rates, market appreciation, and more to help you make informed real estate investment decisions.




























