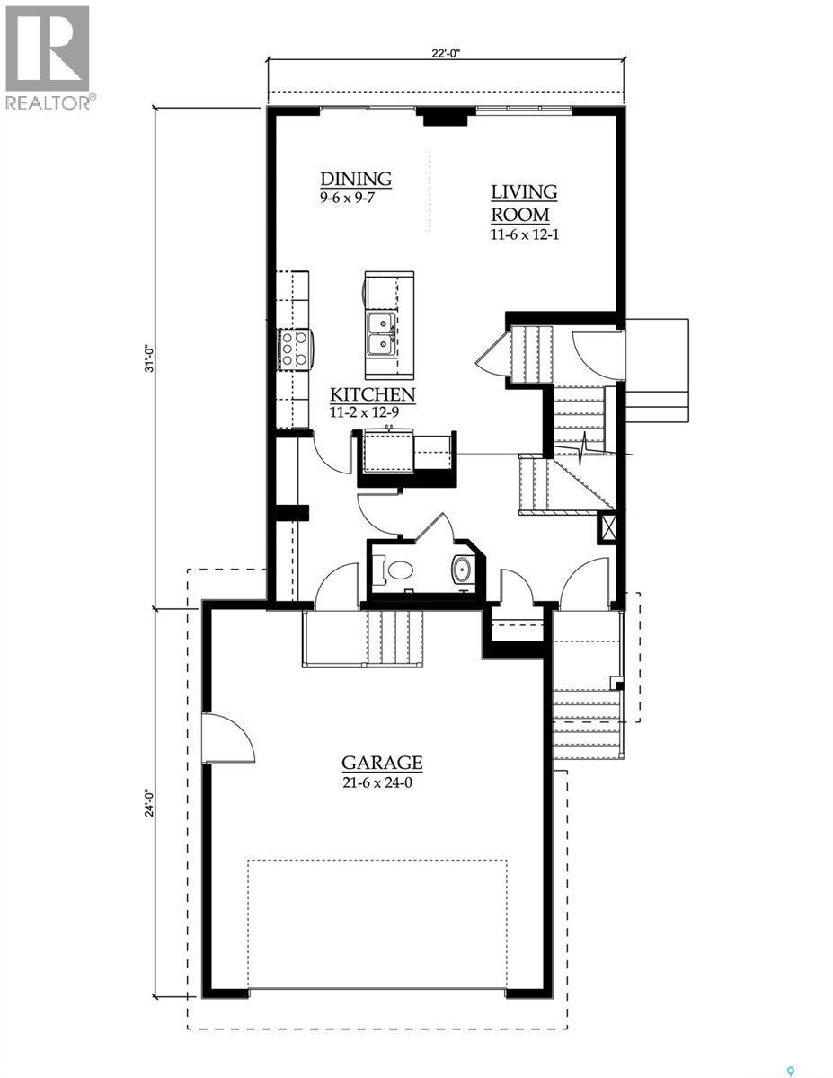
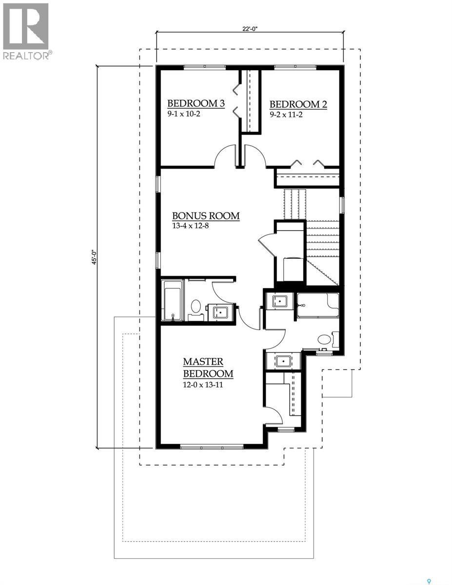
Maison À vendre à Brighton, Saskatoon, Saskatchewan
590 400 $ ÉvaluationExpressMC: Non disponible3 Chambres
3 Salles de bain
-
Détails
-
Carte
-
Données démographiques
-
Vue de la rue
-
Itinéraire
-
Publicité



