Button CopyPathCircle CloseCircle Left ArrowArrow Down Icon GreyClosecirclecircleBurger

5e Rang, Saint-Alphonse-Rodriguez, QC, J0K 1W0

No. MLS® 24937095
Terrain À vendre à Saint-Alphonse-Rodriguez, Québec
58 500 $ +TPS/TVQ

None Chambres

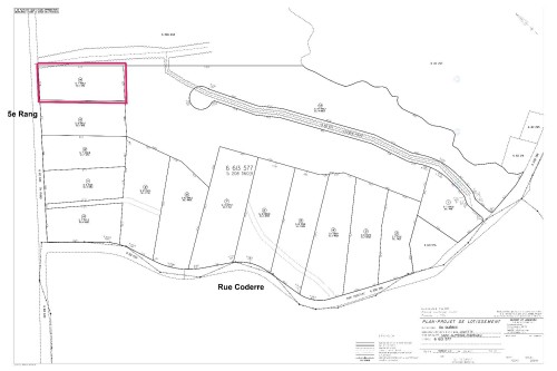
Plan (croquis) - 5E Rang, Saint-Alphonse-Rodriguez, QC
Photo aérienne - 5E Rang, Saint-Alphonse-Rodriguez, QC
Extérieur - 5E Rang, Saint-Alphonse-Rodriguez, QC
Plan (croquis) - 5E Rang, Saint-Alphonse-Rodriguez, QC
Photo aérienne - 5E Rang, Saint-Alphonse-Rodriguez, QC
Extérieur - 5E Rang, Saint-Alphonse-Rodriguez, QC
  • Publicité
5e Rang, Saint-Alphonse-Rodriguez, QC, J0K 1W0
58 500 $ +TPS/TVQ

Remarques :

Voici une belle chance d'acheter un ou plusieurs terrains boisés contigus en pleine nature. Plusieurs développements possibles selon la grille de zonage. Un havre de paix à St-Alphonse-Rodriguez ! Hydro-Québec et BELL (internet, câble, téléphone) sont sur place pour branchement immédiat. À seulement 10 minutes du village et des services essentiels. À noter que l'accès aux terrains se fait par la Rue Coderre ou 5e Rang, deux rues desservies par les services d'Hydro-Québec et BELL, et dont la récollection des ordures et le déneigement sont déjà assuré par la Ville. Plus de photos : https://www.instagram.com/arboterrainc/

Plusieurs lots à vendre ! Ils sont tous un à côté de l'autre. Ce lot en particulier a une superficie totale de 7998 mètres carrés, avec une superficie bâtissable de 5381 mètres carrés. Il est possible d'acheter ce lot (#14) et le/s lot/s à coté si désiré (voir listings # 22565709, # 17908320 et # 24696780).

Possibilité de construire pour faire de la location court terme (l'ACHETEUR devra faire une demande à la municipalité et à la CITQ pour obtenir le permis nécessaire, car la décision leur revient).

Il n'y a pas de système d'aqueduc et d'égout. Hydro-Québec et BELL sur place pour branchement immédiat. Veuillez prendre connaissance de la déclaration du vendeur pour plus d'informations. Il n'y a pas de frais d'association du domaine ou du secteur. Aucun test de sol a été effectué par le VENDEUR.

Le VENDEUR ne fournira pas de certificat de localisation à l'ACHETEUR. La présente vente sera faite avec la matrice graphique et/ou le plan parcellaire et l'Infolot et/ou le plan-projet de lotissement préparé par un arpenteur géomètre (voir photo 2).

À proximité :
- École primaire St-Alphonse-Rodriguez (10 minutes).
- Centre hospitalière de Lanaudière à Joliette (35 minutes).
- Accès rapide aux routes 343 et 337.

Vous profiterez d'une foule d'activités possibles à moins de 30 minutes de distance, comme :
- Arbraska (25 minutes).
- BlackOps Paintball (8 minutes).
- Au Canot Volant, Saint-Côme (18 minutes).
- Parc régional de la Chute-à-Bull (16 minutes).
- Club les Trappeurs, sentiers pédestres, St-Côme (18 minutes).
- Super Glissade Matha, centre de loisirs, St-Jean-de-Matha (27 minutes).
- Club de Golf Montcalm (27 minutes).
- Rawdon Golf Resort (22 minutes).
- Havre Familial, Centre de plein air, Ste-Béatrix (16 minutes).
- Traineau à chiens, Kinadapt (23 minutes).
- Sky Montagne Coupée (27 minutes).
- Municipalité de Saint-Côme (27 minutes).
- Parc des Cascades, Rawdon (25 minutes).
- Parc des Chutes Dorwin, (26 minutes).
- Parc Régional des Chutes-Monte-à-Peine-et-des-Dalles, Sainte-Beatrix, (20 minutes).
- Parc Régional des Chutes-Monte-à-Peine-et-des-Dalles, St-Jean-de-Matha (26 minutes).
- Plage municipale de Sainte-Émélie-de-l'Énergie (22 minutes).
- Plage municipale de St-Alphonse-Rodriguez (10 minutes).
- Plage municipale de Rawdon (26 minutes).
- Tournée des Cantons de Rawdon, sentiers (25 minutes).
- Spa La Source Bains Nordiques (24 minutes).
- Station Ski Montcalm (28 minutes).
- Station Touristique Val Saint-Côme, centre de ski (24 minutes).

Et bien plus !!!

Opportunité UNIQUE d'acquérir un ou plusieurs terrains pour réaliser votre projet de rêve, à seulement 100 km du centre-ville de Montréal.

Plus de photos : https://www.instagram.com/arboterrainc/

NOTE IMPORTANTE : L'ACHETEUR sera responsable de valider auprès des autorités municipales les réglementations et les différentes options pour la viabilité de son projet.

Particularités du bâtiment :

  • Caractéristiques du terrain: Villégiature/Chalet, Autoroute, Golf, Hôpital, Parc, École primaire, Ski de fond, Sentier de motoneige, Boisé
  • Égout: Aucun
  • Source d'eau: Aucun

Caractéristiques :

  • Dimensions du terrain : 7998.00 Mètres carrés
  • Largeur du terrain en façade : 139.6 Mètre
  • Profondeur du terrain : 56.64 Mètre
  • Zonage: Other

Données fournies par : Centris - 600 Ch Du Golf, Ile -Des -Soeurs, Québec H3E 1A8
Nous croyons que tous les renseignements affichés sont exacts, mais nous ne le garantissons pas; les renseignements devraient être vérifiés de façon indépendante. Aucune garantie ou représentation de quelque nature que ce soit n’est offerte. Droits© 2021 Tous les droits sont réservés.

Vendue sans garantie légale, aux risques et périls de l'acheteur.

Emplacement de 5e Rang, Saint-Alphonse-Rodriguez, QC, J0K 1W0

Données démographiques de 5e Rang, Saint-Alphonse-Rodriguez, QC, J0K 1W0

Étape de vie

Familles avec parents dans la cinquantaine

Type d'emploi

Cols bleus/Primaire, Cols bleus/Industrie des services

Revenu moyen du ménage

105 000.00 $

Nombre moyen d'enfants

1.60

Population à domicile

Structure à domicile

Âge de la population

Éducation

Niveau d'éducation

No certificate/diploma/degree

28.37 %

Diplôme d'études secondaires ou équivalent

21.62 %

Certificat ou diplôme d'apprentissage ou d'une école de métiers

19.6 %

Diplôme d'études collégiales ou d'études postsecondaires (non universitaires)

16.9 %

Certificat d'études universitaires

1.35 %

Diplômes d'études universitaires

12.16 %

Navetteur

Se rendre au travail

En auto

98.25 %

En transport en commun

0.0 %

À pied

0.0 %

À bicyclette

0.0 %

Par tout autre moyen

1.75 %

Diversité Culturelle

Connaissance des langues officielles

Langue maternelle

Données Sur Le Bâtiment

Type de bâtiment

Appartements (faible hauteur et à étages multiples)

1.24 %

Maisons

98.76 %

Achat ou location