Maison À vendre à Westboro, Ottawa, Ontario
879 000 $ ÉvaluationExpressMC:2 Chambres
3 Salles de bain
-
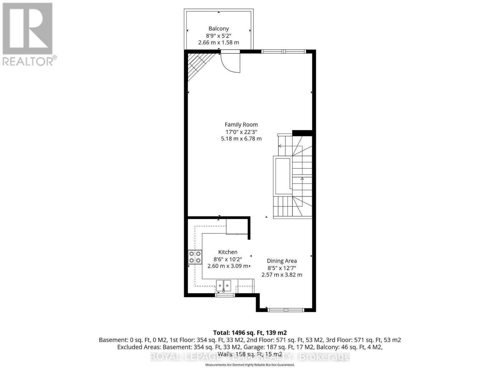
Détails
-
Carte
-
Données démographiques
-
Vue de la rue
-
Itinéraire
-
Publicité
MULTIMEDIA




























