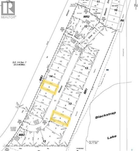
Terrain À vendre à Shields, Saskatchewan
99 999 $None Chambres
-
Détails
-
Carte
-
Données démographiques
-
Vue de la rue
-
Itinéraire
-
Publicité




































