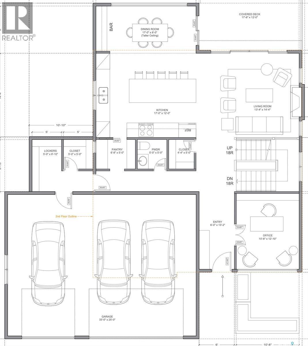
Maison À vendre à The Willows, Saskatoon, Saskatchewan
2 165 000 $ ÉvaluationExpressMC: Non disponible5 Chambres
4 Salles de bain
-
Détails
-
Carte
-
Données démographiques
-
Vue de la rue
-
Itinéraire
-
Publicité






