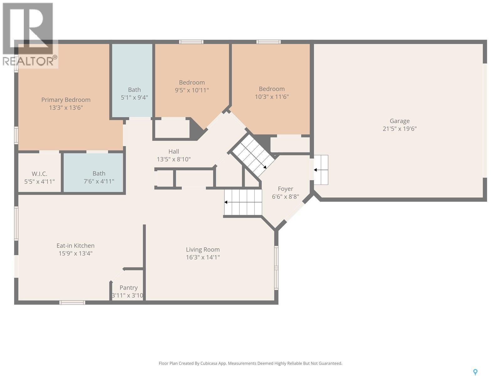
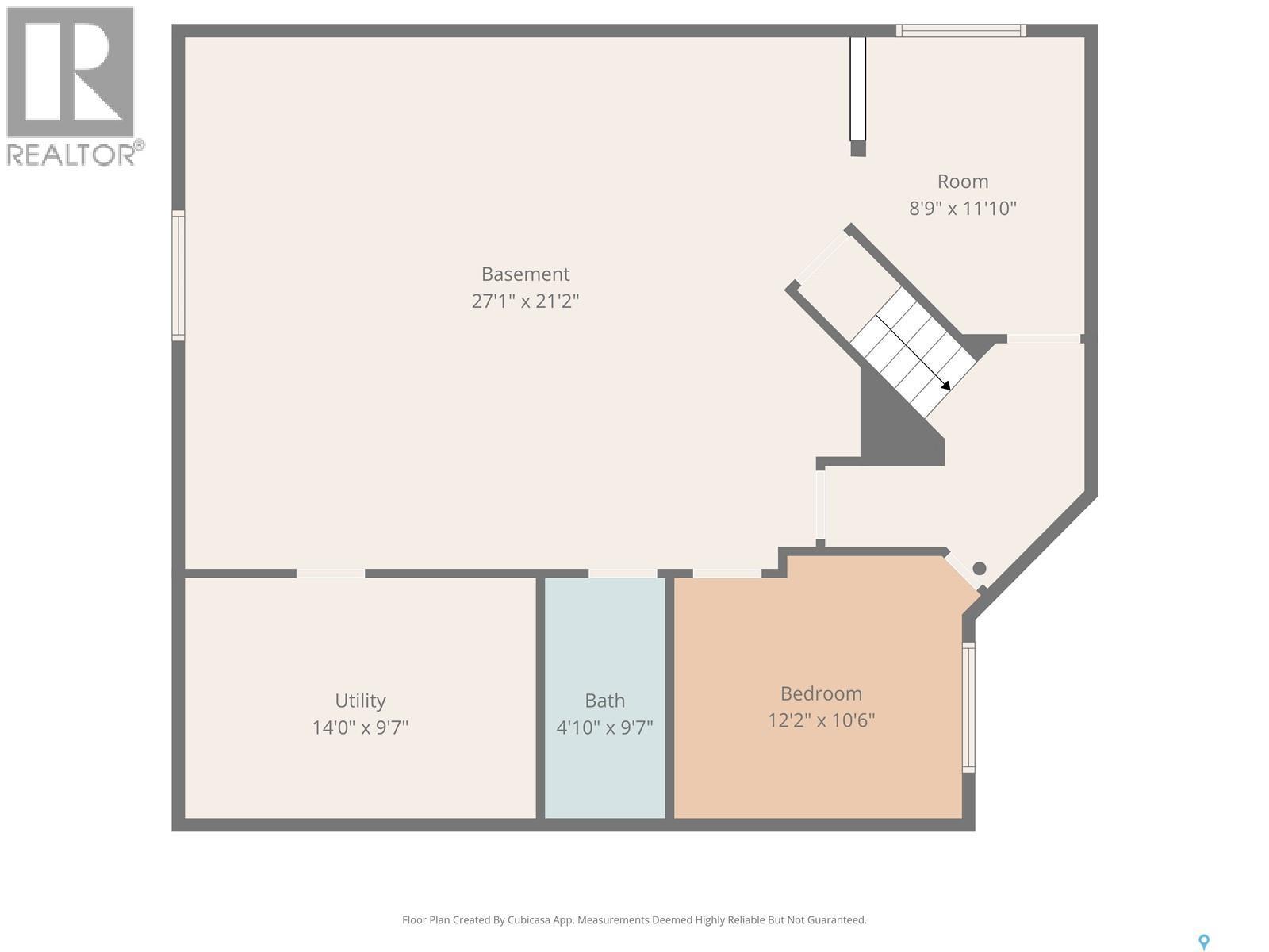
Maison À vendre à Hampton Village, Saskatoon, Saskatchewan
524 900 $ ÉvaluationExpressMC: Non disponible4 Chambres
3 Salles de bain
-
Détails
-
Carte
-
Données démographiques
-
Vue de la rue
-
Itinéraire
-
Publicité













































