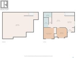
103 1015 patrick CRESCENT, Saskatoon, Saskatchewan, S7W 0M3
255 000 $No. MLS® SK032316
Le contenu de cette inscription est fourni par REALTOR.ca et a été autorisé par les membres de l'Association canadienne de l'immeuble.
Photos supplémentaires































