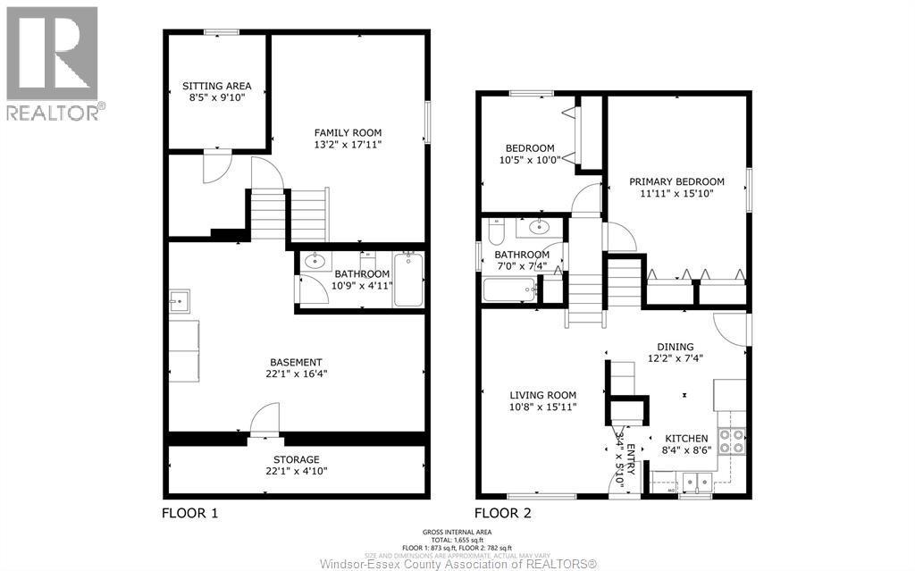
Maison À vendre à Fontainbleu, Windsor, Ontario
499 900 $ ÉvaluationExpressMC:2+1 Chambres
2 Salles de bain
-
Détails
-
Carte
-
Données démographiques
-
Vue de la rue
-
Itinéraire
-
Publicité































