Maison À vendre à Remington Park, Windsor, Ontario
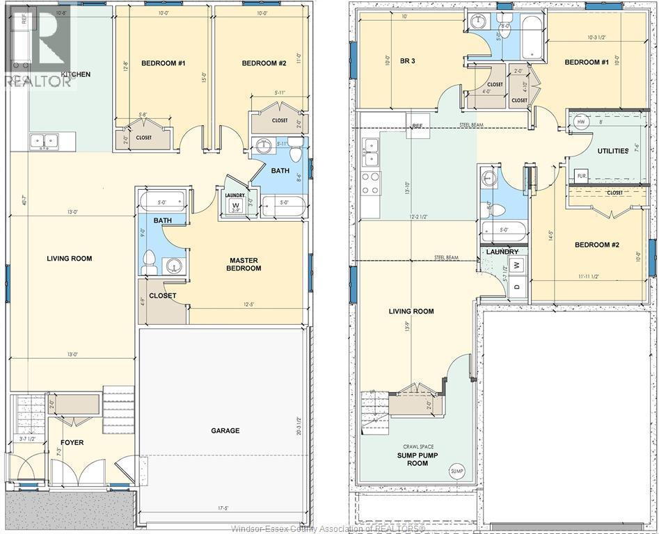
699 999 $ ÉvaluationExpressMC:3 Chambres
2 Salles de bain
-
Détails
-
Carte
-
Données démographiques
-
Vue de la rue
-
Itinéraire
-
Publicité







