Maison À louer à Riverside, Windsor, Ontario
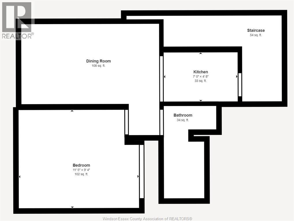
1 250.00 $ /mois1 Chambres
1 Salle de bain
-
Détails
-
Carte
-
Données démographiques
-
Vue de la rue
-
Itinéraire
-
Publicité



















