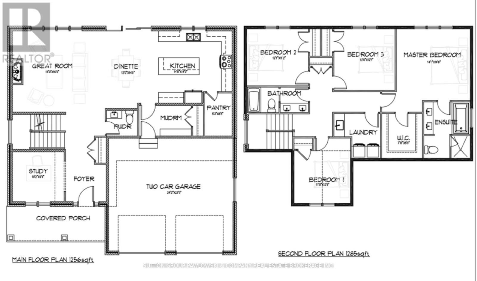
Maison À vendre à Middlesex Centre (Ilderton), Ontario
1 095 900 $ ÉvaluationExpressMC: Non disponible4 Chambres
3 Salles de bain
-
Détails
-
Carte
-
Données démographiques
-
Vue de la rue
-
Itinéraire
-
Publicité




























