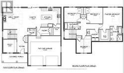
LOT #16 - 190 TIMBERWALK TRAIL, Middlesex Centre (Ilderton), Ontario, N0M 2A0
1 095 900 $No. MLS® X12540688
Le contenu de cette inscription est fourni par REALTOR.ca et a été autorisé par les membres de l'Association canadienne de l'immeuble.
Photos supplémentaires



























