Maison À vendre à Manitowaning, Ontario
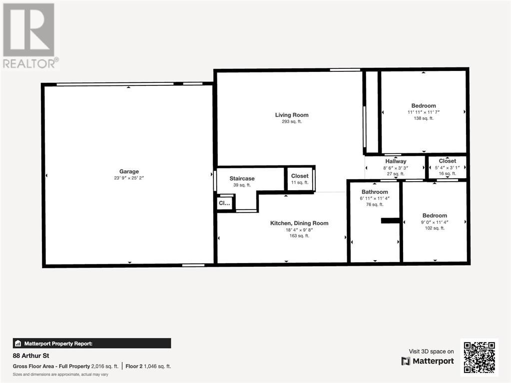
430 000 $ ÉvaluationExpressMC: Non disponible2 Chambres
1 Salle de bain
-
Détails
-
Carte
-
Données démographiques
-
Vue de la rue
-
Itinéraire
-
Publicité

















































