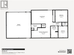
88 Arthur Street, Manitowaning, Ontario, P0P 1N0
430 000 $No. MLS® 2123192
Le contenu de cette inscription est fourni par REALTOR.ca et a été autorisé par les membres de l'Association canadienne de l'immeuble.
Photos supplémentaires
















































