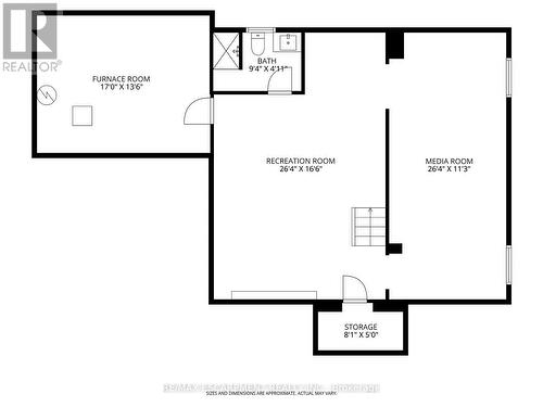
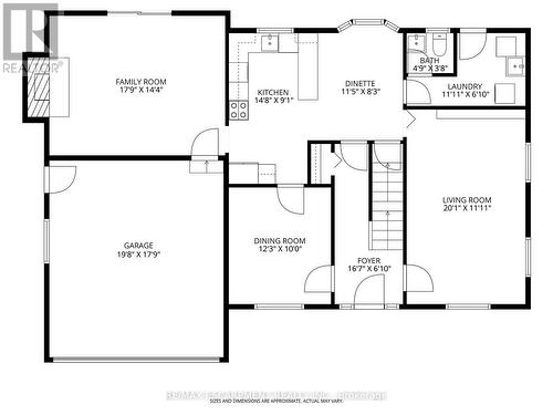
Maison À vendre à Clearview, Hamilton, Ontario
1 295 000 $ ÉvaluationExpressMC:4 Chambres
4 Salles de bain
-
Détails
-
Carte
-
Données démographiques
-
Vue de la rue
-
Itinéraire
-
Publicité












































