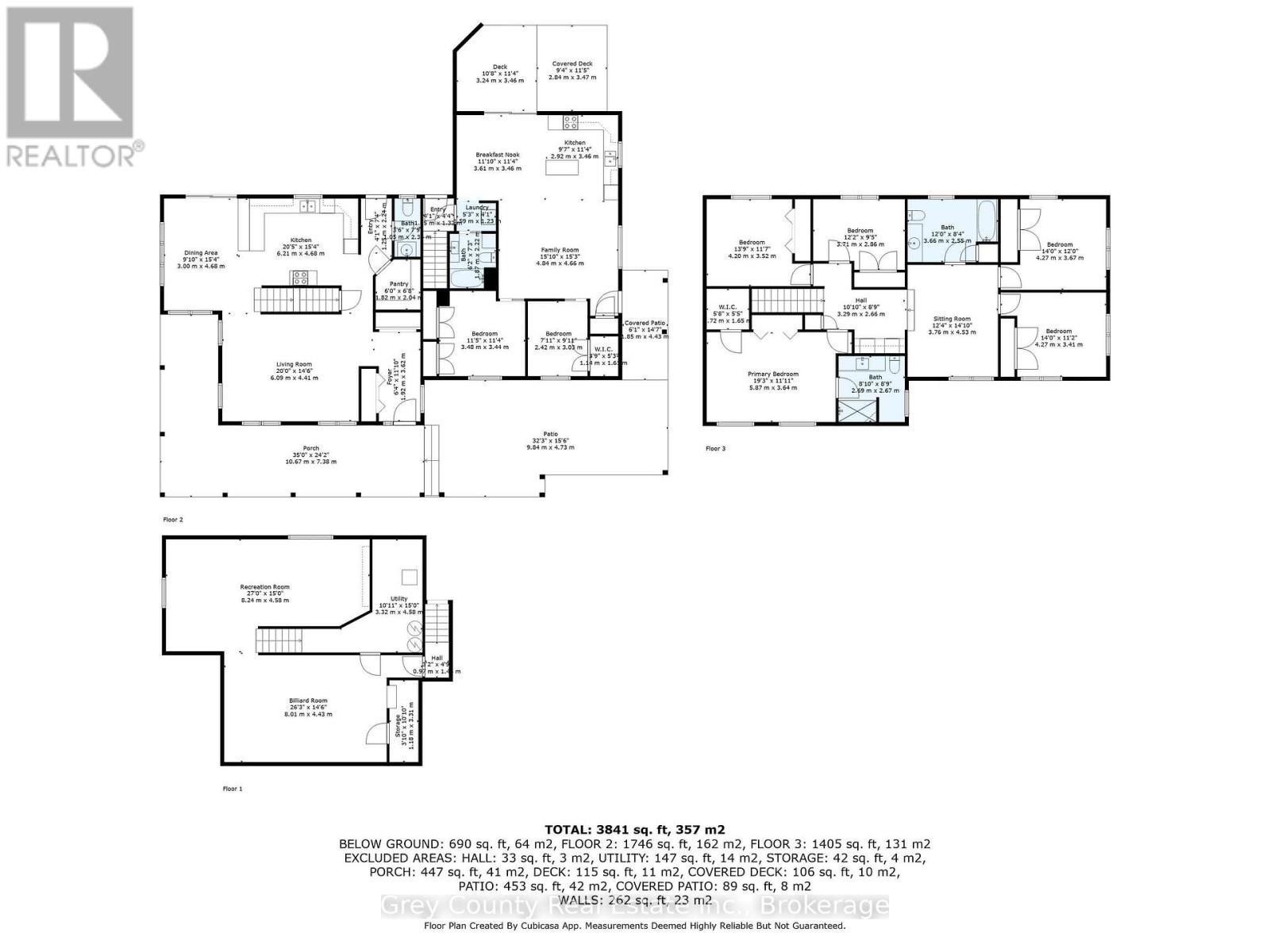
Maison À vendre à Grey Highlands, Ontario
1 599 000 $ ÉvaluationExpressMC:5+2 Chambres
4 Salles de bain
-
Détails
-
Carte
-
Données démographiques
-
Vue de la rue
-
Itinéraire
-
Publicité
MULTIMEDIA

















































