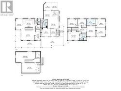
135260 9TH LINE, Grey Highlands, Ontario, N0C 1H0
1 599 000 $No. MLS® X12346111
Le contenu de cette inscription est fourni par REALTOR.ca et a été autorisé par les membres de l'Association canadienne de l'immeuble.
Photos supplémentaires
















































