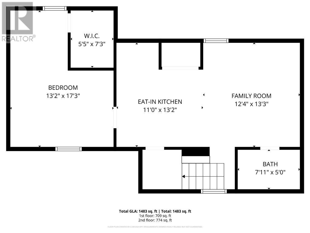
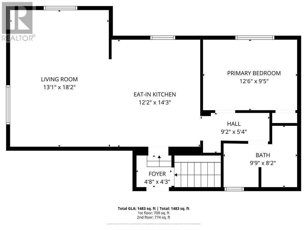
Investissement À vendre à Capreol, Ontario
279 900 $-
Détails
-
Carte
-
Données démographiques
-
Vue de la rue
-
Itinéraire
-
Publicité

























